1/9
(2019.9.15撮影)
2/9
(2019.9.15撮影)
3/9
(2019.9.15撮影)
4/9
(2019.9.15撮影)
5/9
(2019.9.15撮影)
6/9
(2019.9.15撮影)
7/9
(2019.9.15撮影)
8/9
(2019.9.15撮影)
9/9
(2019.9.15撮影)









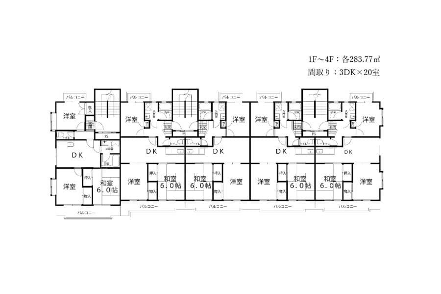
鉄筋コンクリート造、3DK×20室の一棟マンション。
建築確認済証・検査済証あり。敷地内駐輪場・ゴミ捨て場あります。
コンビニまで徒歩約2分、スーパーまで徒歩約3分の好立地。
KADOKAWA運営の埼玉の大型文化複合施設「ところざわサクラタウン」では
体験版書店や多くのイベントが開催されています。





売却が難しい物件の買取
空き家の相談窓口
コインパーキング化
空き家の借り上げ
土地・中古戸建
ビル・収益物件・店舗・倉庫